本文根据用户使用好评度高的美国188彩票KNKE的进口磁力泵说明书的介绍,为大家总结磁力泵如何转向?磁力泵端面间如何调整的问题,希望对大家有帮助。
磁力泵转向
磁力泵可以顺时针或者逆时针运转转向。泵送物料通常是流到内止推垫圈,轴套内表面,然后通过轴套上的槽流到外止推垫圈处。然后物料进入磁缸轴套,接着沿着中空的轴与惰轮销回流到磁力泵的入口。如果磁力泵反向运行,那么以上的物料循环线路也相反。

磁力泵端面间调整
磁力泵端面间调整方法一:当转子、锁紧螺母都安装好以后,调整塞尺数值至正确的端面间隙,从磁力泵的进出口处将塞尺插入两个转子齿间。将装好惰轮的端盖装到磁力泵壳上,拧紧端盖螺丝后,感觉塞尺有点紧但是能顺利取出,否则需要增加或者减少垫片厚度,直到得到合适的端面间隙。

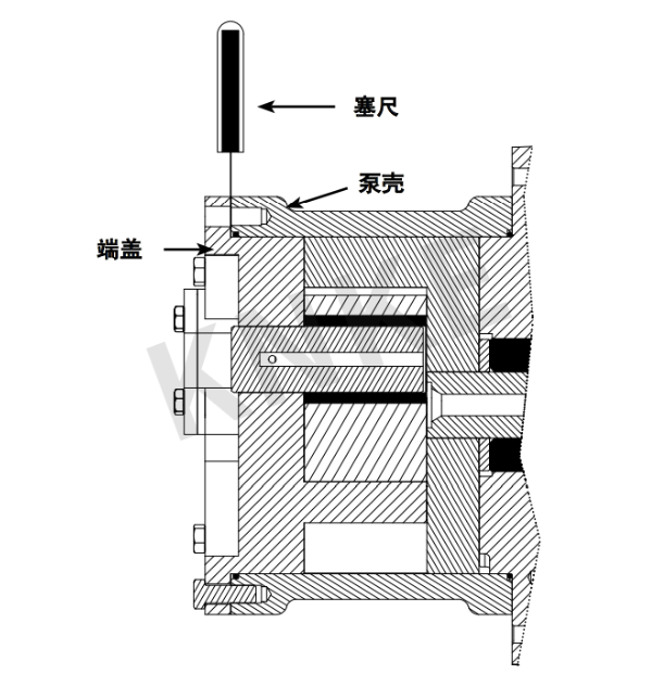
磁力泵端面间调整方法二:如果磁力泵已经安装到管线中,不方便从磁力泵口处插入塞尺时,将端盖与垫片拆下来。然后单独将端盖(不装调节垫片)安装回去,测量下图所示的间隙。当确定好端盖与磁力泵壳间的间隙后,选择调节垫片,使其厚度等于刚才测量的间隙加上需要的端面间隙。取下端盖,安装调节垫片,再将端盖重新安装好,紧固端盖螺丝。手盘磁力泵,确认磁力泵转动是否顺畅,以确认端面间隙是否设定好。

以上就是以美国188彩票进口磁力泵为例,为大家介绍的磁力泵如何转向?磁力泵端面间如何调整的问题,如果您有磁力泵相关采购需求,欢迎随时联系我们。188彩票工业提供各种工业流体解决设备。

